Nicole Danner - Architektur Innenarchitektur Aschaffenburg Rhein-Main

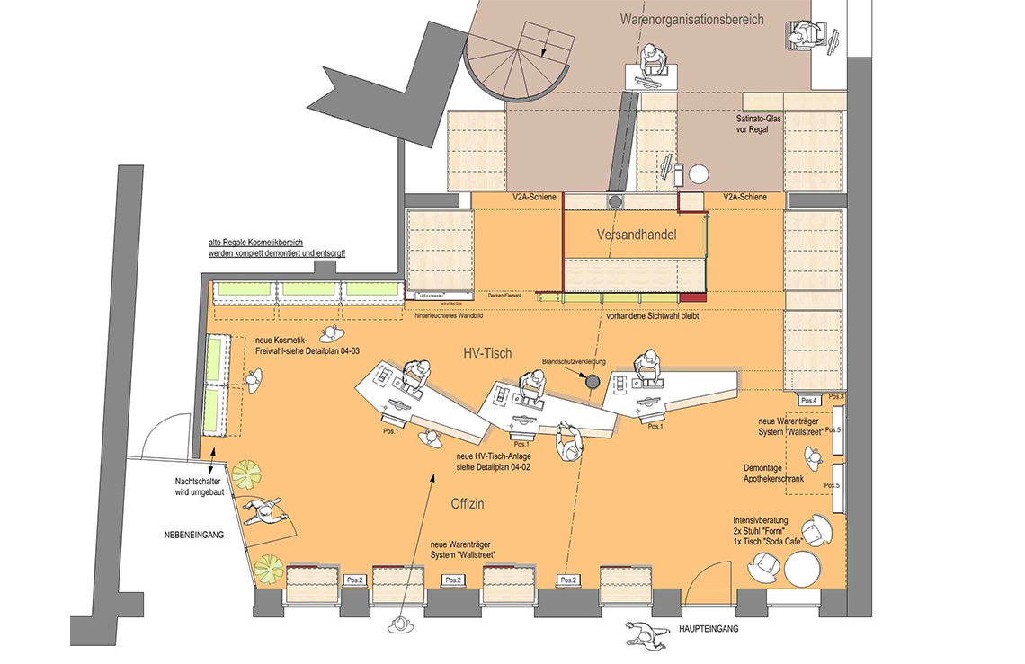
Im Erdgeschoss eines Fachwerkhauses der Innenstadt wurde die Apotheke aus den 80er-Jahren während des laufenden Betriebes in zwei Wochen Umbauzeit neu gestaltet.

Die Apothekerin wünschte sich eine helle, freundliche Atmosphäre.
Eine besondere Herausforderung, da nur wenig Tageslicht in den niedrigen, 80 m2 großen Verkaufsraum gelangt.

Eine weiße Akustik-Spanndecke kombiniert mit Sonderleuchten (Konzept/Herstellung: thomashubertlicht) ermöglicht optimale Lichtverhältnisse.

Die Geometrie des Handverkaufstisches bietet dem Kunden Diskretion. Warme Farbnuancen von Möbeloberflächen und Bodenbelag harmonieren mit den Bestandseinbauten der Warenorganisation.

innenarchitektur Nicole Danner Aschaffenburg
innenarchitektur Nicole Danner Aschaffenburg
innenarchitektur Nicole Danner Aschaffenburg
innenarchitektur Nicole Danner Aschaffenburg